Bel voor vrijblijvend advies

Aanbod

Moergestelseweg 14

BESCHIKBAAR

5062 JW Oisterwijk


Afbeeldingen


Omschrijving

Kantoorruimte te huur

Stijlvolle kantoorvilla ontworpen door Storimans Wijffels Architecten met hoogwaardige, duurzame materialen. De symmetrische gevels zijn bekleed met Muschelkalk natuursteen en het interieur is luxe afgewerkt. De patiotuin in het midden zorgt voor veel daglicht in de kantoorruimtes, die allemaal zijn uitgerust met kastenwanden, airconditioning, en een verlichtingsplan.

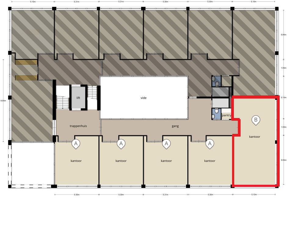
Oppervlakte Beschikbare ruimte:
• 1e verdieping Kantoorruimte B van 51 m²

Voorzieningen inclusief lift, beveiligingsinstallatie, kitchenette, glasvezel, automatische zonwering, en sanitaire voorzieningen. Elke kamer is voorzien van airconditioning, telefoon- en data-aansluitingen, kastenwand, en hoogwaardige afwerking.

Parkeren Voldoende openbare parkeerplaatsen.

Aanvaarding In overleg, op korte termijn mogelijk.

Huurtermijn
5 jaar + 5 jaar.

Betalingstermijn
Per maand vooruit te voldoen.

Indexering
Jaarlijks, op basis van het Consumenten Prijsindexcijfer (CPI), reeks Alle Huishoudens (2015=100), voor het eerst één jaar na ingangsdatum huurovereenkomst.

Huurovereenkomst
Huurovereenkomst kantoorruimte en andere bedrijfsruimte in de zin van artikel 7:230a BW, conform ROZ model (Raad voor Onroerende Zaken), model 2015.

Zekerheid
Bankgarantie of waarborgsom ter grootte van 3 maanden betalingsverplichting inclusief servicekosten.
Voorbehoud

Goedkeuring eigenaar/verhuurder.


Kenmerken

Oppervlakte kantoorruimte
51 m2
Soort
Kantoorruimte
Prijs
Prijs op aanvraag

Contactpersonen